Edgar Quinet / 75014

Localité : Paris 14
Surface de plancher : 114 m2
Champ d’action : Rénovation complète

 

Cette maison familiale est destinée à un couple et sa dernière fille. La maison été entièrement rénovée et repensée.

 

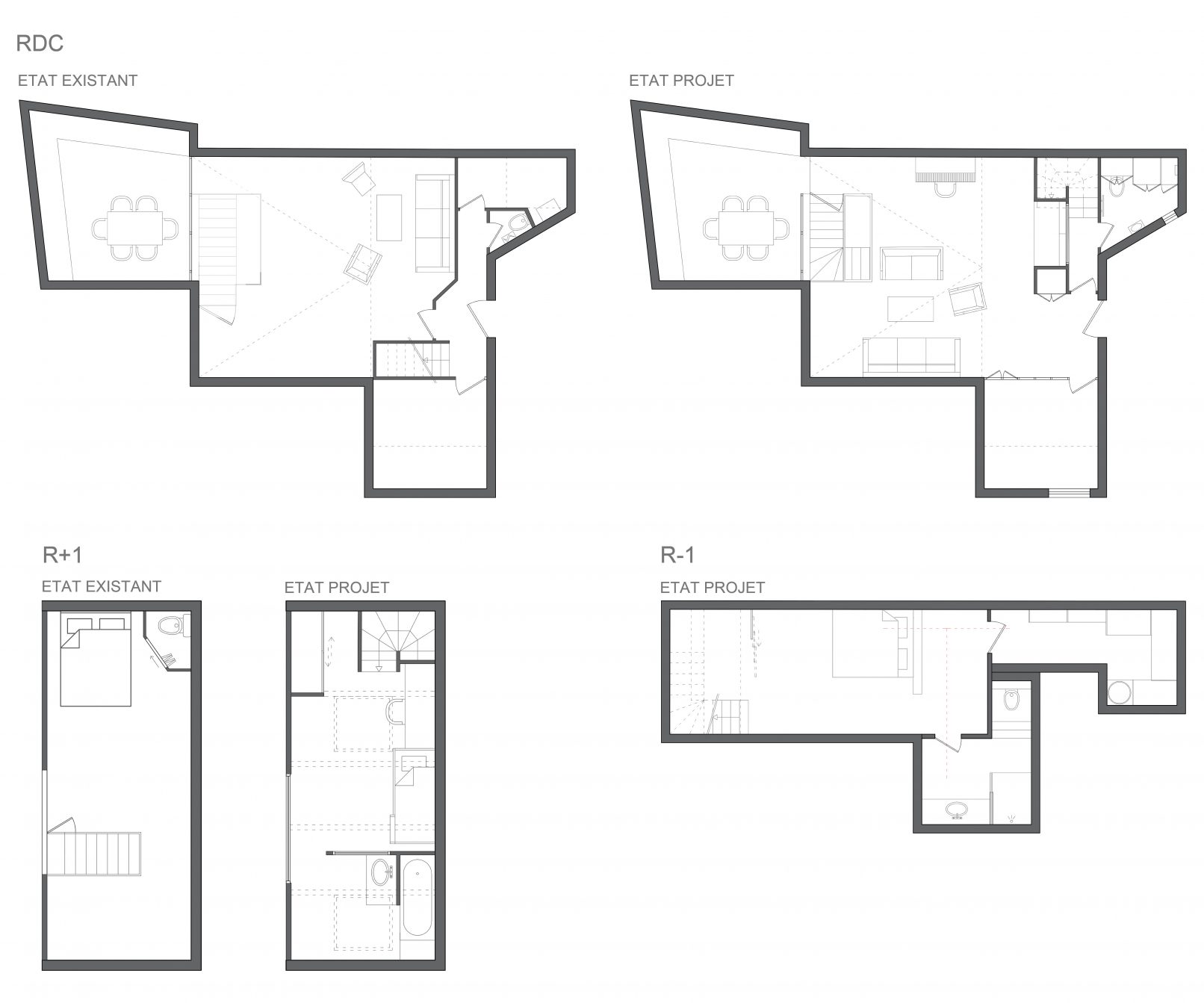
Les deux escaliers ont été changés de place, l’espace en sous sol a été aménagé en chambre, dressing et salle de bain. L’aménagement du sous-sol a été pensé pour que la chambre ait  un maximum de lumière naturelle (un rectangle en verre de la largeur de la chambre à été inséré dans le plafond, et la lumière naturelle se réfléchit dans une glace au fond de la pièce, la couleur dominante est claire).

 

L’autre escalier,qui part d’un couloir crée dans l’entrée, donne accès à une chambre et une salle de bain, en mezzanine.

 

Le rez de chaussée est principalement destiné aux pièces communes: entrée , salon et cuisine. Un salon TV (pouvant servir de chambre d’appoint) donne dans le séjour et une buanderie et des toilettes dans le couloir qui conduit à la mezzanine.

 

Nous avons joué sur les volumes (ouverts, bas et hauts de plafond), la circulation fluide, des espaces bien distincts et le maximum de lumière naturelle provenant de toutes parts (fenêtre, châssis de toit et verrière).

 

Les matériaux principaux sont le verre pour laisser passer la lumière et le bois pour réchauffer les pièce. Un jeu sur les couleurs à été pensé  pour que les pièces de réception soient à dominante blanche, tandis que les espaces privés ont des couleurs distinctes.