Chernoviz / 75016

Localité : Paris 16
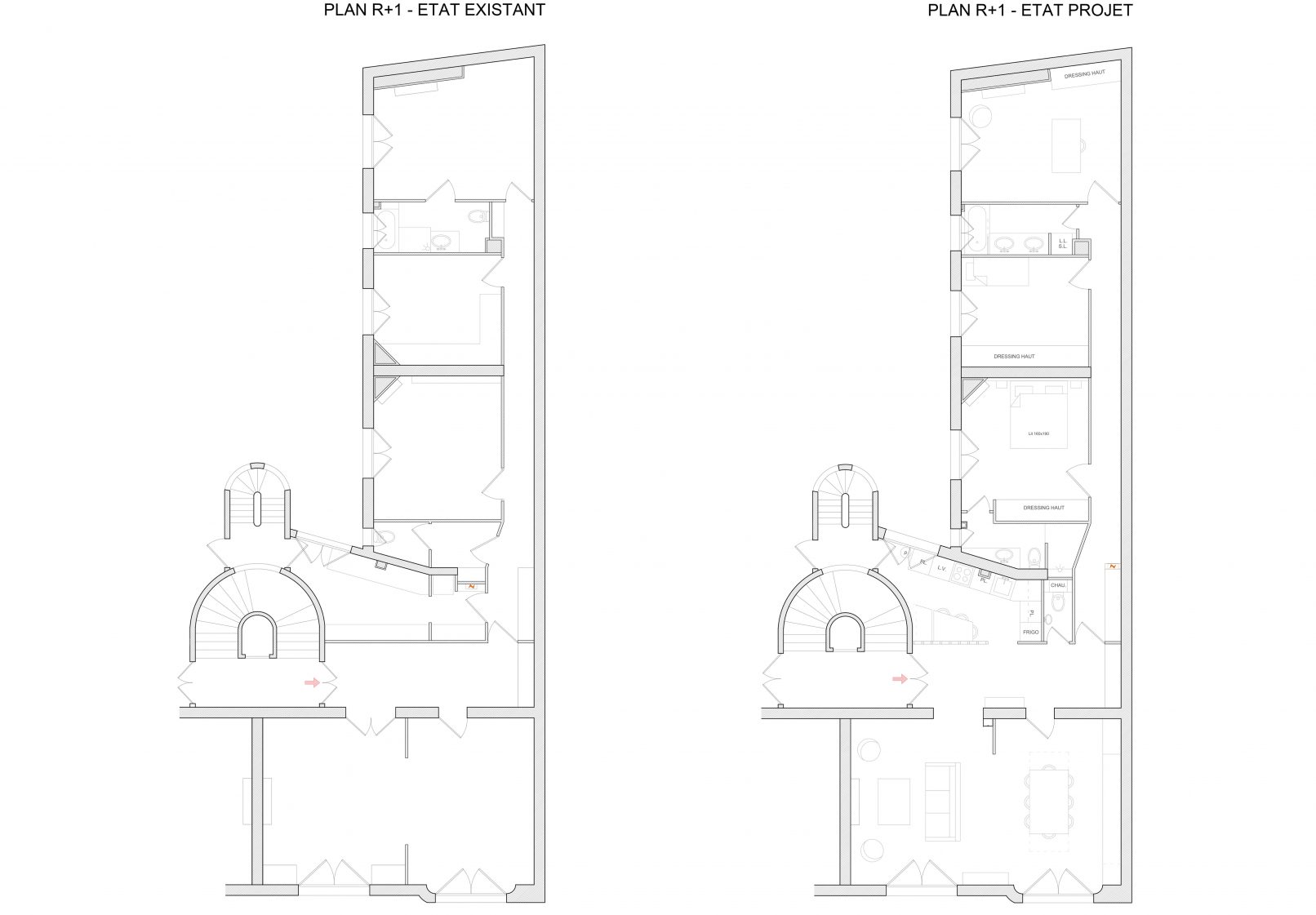
Surface de plancher : 121 m2
Champ d’action : Rénovation complète

 

Crédit photo : Maïlys Derville

 

Le projet se situe dans un immeuble haussmannien à proximité de la rue de Passy.

 

L’appartement n’avait pas été rénové depuis une soixantaine d’année. L’appartement a été entièrement repensé pour une famille avec un enfants en bas – âge et une famille à plus long terme.

 

L’appartement a été divisé en deux parties, un coin jour avec l’entrée, le salon, la salle à manger, la cuisine et des WC invités. Et un coin nuit avec deux chambres et une suite parentale avec sa salle d’eau. Trois enjeux majeurs étaient fixés : Créer une salle d’eau supplémentaire avec WC et créer un WC invité indépendant et avoir une cuisine dinatoire.

 

L’ensemble du projet à été pensé pour maximiser les volumes, fluidifer la circulation et laisser passer la lumière naturelle. Des meubles sur mesure tels que la bibliothèque, le claustra, la verrière ou la table de la cuisine avec son banc encastré ont été créés pour tirer au mieux partie des pièces.

 

Les couleurs de l’appartement ont été sélectionnées avec un vert foncé très profond dans les pièces à vivre afin de souligner les éléments de l’appartement. Des couleurs spécifiques dans des tons plus légers ont été choisies pour les chambres et les salles d’eau.