Centre d’accueil – Association / 75011

Localité : Paris 11
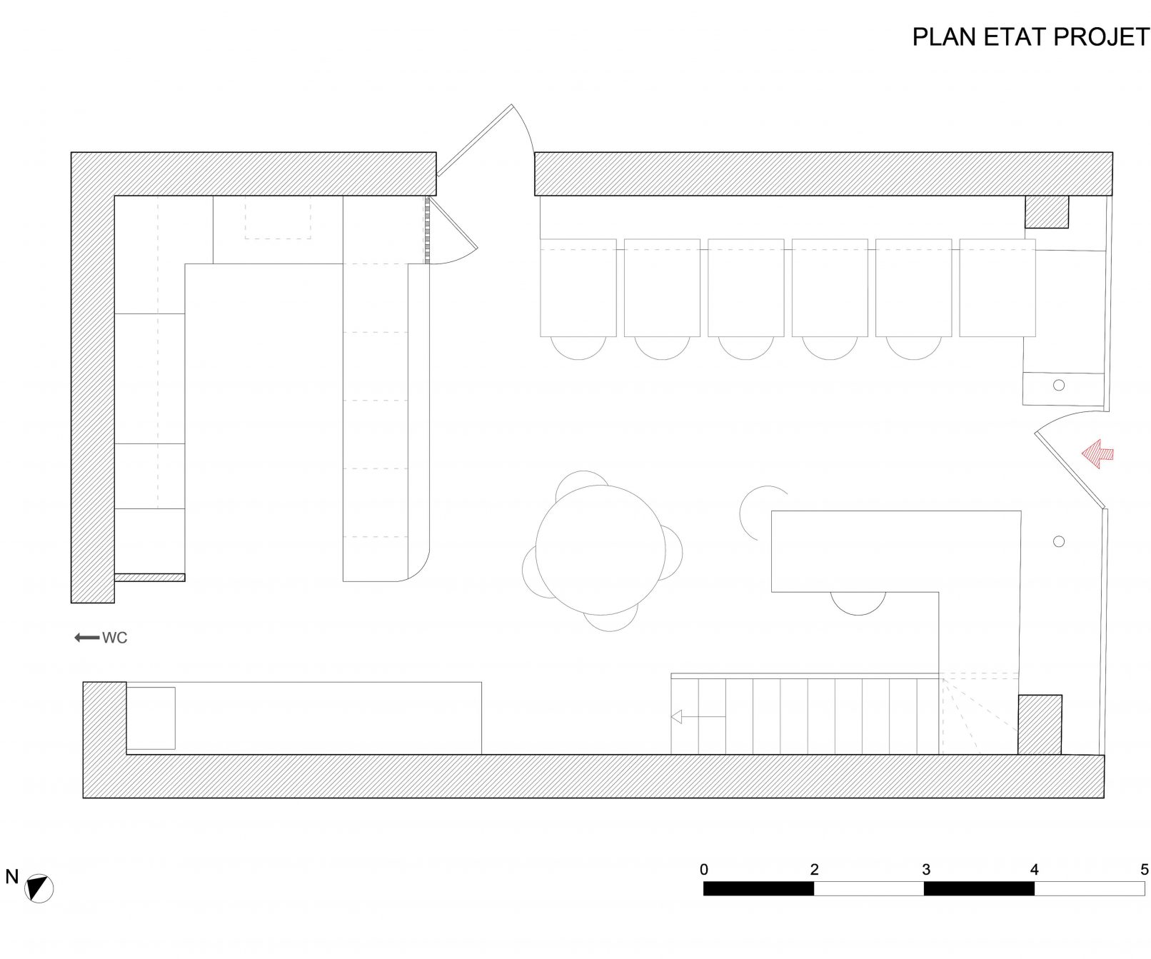
Surface de plancher : 43 m2
Champ d’action : Rénovation complète

 

Conception d’un centre d’accueil pour une association.

 

L’objectif de cette rénovation était de regrouper trois fonctions dans une unique grande pièce : Un bureau d’accueil ; un salon avec des tables de permanences (pour travailler, jouer, discuter etc…) ; une cuisine pour des ateliers culinaires et des réceptions.

 

Nous avons utilisé principalement du bois, pour créer une unité pour ces trois fonctions et afin de donner un maximum de chaleur à ce lieu.

 

De plus, nous avons créé une frontière virtuelle avec un claustra et un présentoir pour séparer la cuisine du reste de la pièce. Le plafond acoustique a lui aussi été abaissé au niveau de cette séparation.

 

Le mur du fond de la cuisine a été peint dans un bleu profond ,qui se marie très bien avec le bois et le blanc cassé.