Jean Ferrandi / 75006

Localité : Paris 06
Surface de plancher : 218 m2
Champ d’action : Rénovation complète

 

Ce projet est situé dans une impasse privée du 6ème arrondissement.

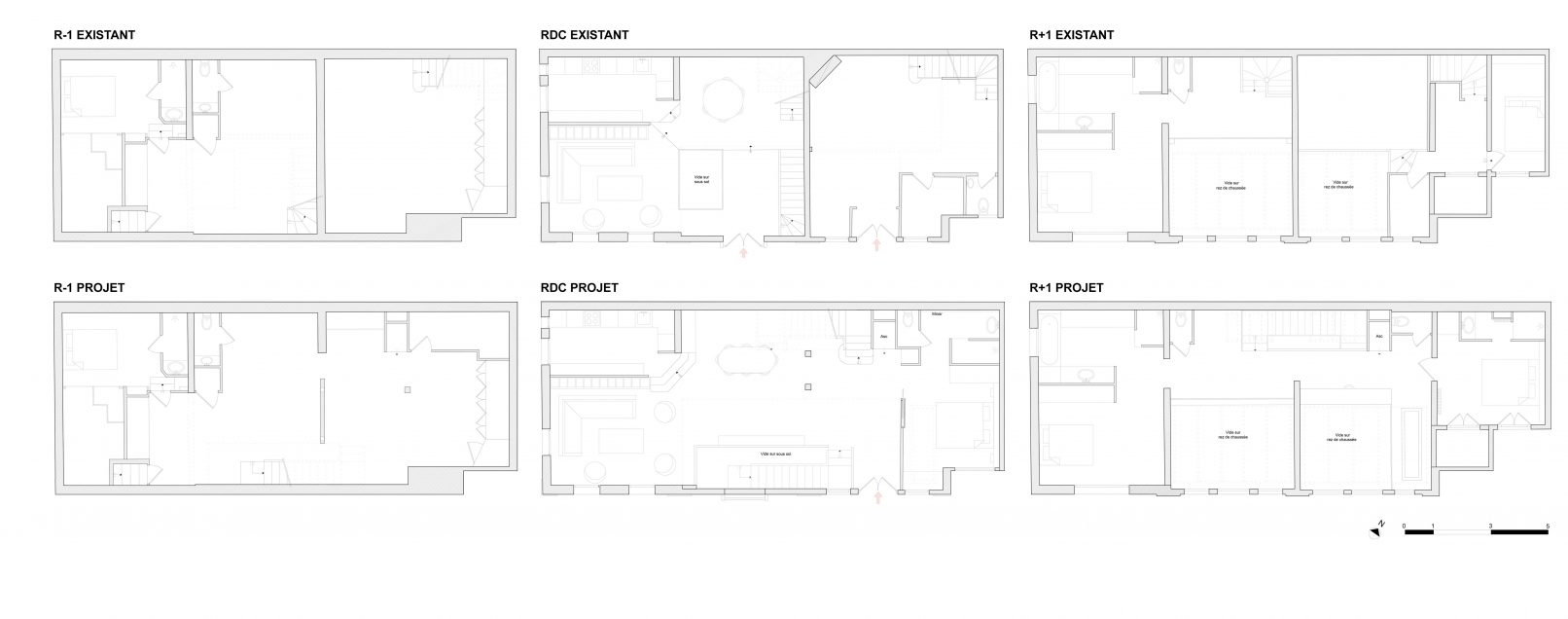
L’objectif consistait à réunir deux ateliers d’artiste datant de 1937 avec un atelier mitoyen de la même époque pour constituer une vaste maison avec une bonne circulation sur 3 étages. D’un atelier à l’autre, les étages (Sous-sol, RDC et 1er) n’étaient pas au même niveau et ne pouvaient pas communiquer.

 

L’ensemble des intérieurs a été démoli afin de créer des sols au même niveau par étage, une grande trémie a été conçue pour éclairer le sous-sol et une mezzanine au 1er étage a été installée.

 

Les circulations verticales ont été placées au centre de la maison : construction en voûte sarrasine d’un escalier en marbre rouge pour le R+1 et d’un escalier en bois pour le R-1. Un ascenseur intérieur dessert les trois niveaux avec un jour vertical sur toute une face latérale pour apporter de la lumière naturelle dans la cabine.

 

Conception d’une grande verrière (9,50m x 4,20m) d’un seul tenant, qui donne sur l’ensemble des pièces communes, Création de deux grands châssis de toit à l’arrière de la maison pour apporter de la lumière naturelle et une bonne circulation d’air. Toutes les chambres sont dotées d’un système de ventilation intégré.

 

Le RDC est composé de l’entrée et du salon sous verrière, d’une cuisine à laquelle on accède par 3 marches. Une chambre avec salle de bain et WC a également été créée au RDC  . Cette chambre comporte une très grande porte coulissante afin de pouvoir l’ouvrir entièrement sur le séjour.

Le R+1 comporte deux chambres avec salles d’eau et WC. Un bureau a été réalisé sous la verrière.

Le R-1 est agréable d’utilisation, car la lumière du jour rentre très largement. Un grand bureau, un salon TV et une chambre composent l’espace.

 

Nous avons joué sur les volumes (ouverts/fermés, différentes hauteurs de plafond), la circulation fluide, la création d’espaces bien distincts et le maximum de lumière naturelle provenant de toutes parts (fenêtres, châssis de toit et verrière).

Les matériaux principaux sont le verre pour laisser passer la lumière et les bois de différentes essences pour réchauffer les pièces.

 

Toute la maison est peinte en blanc cassé tirant vers le « coquille d’œuf » pour se marier au mieux avec les dalles de pierre du RDC. Les verrières sont peintes en vert foncé, comme les huisseries extérieures.