3 pièces / 75017

Localité : Paris 17
Surface de plancher : 82 m2
Champ d’action : Rénovation complète

 

Crédit photo : BCDF studio

 

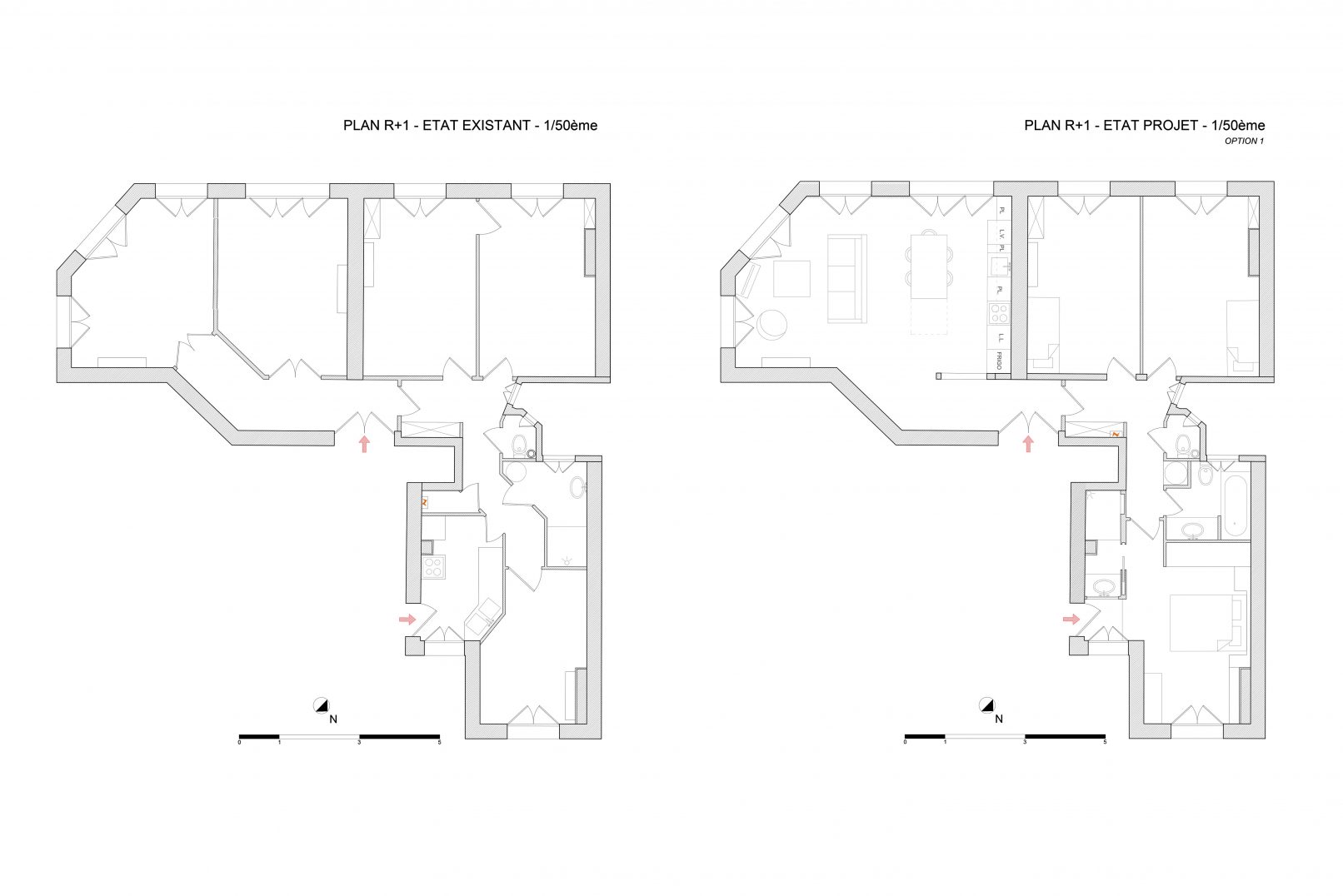
Le projet se situe au premier étage d’un immeuble haussmannien.

 

L’appartement n’avait pas été rénové depuis une soixantaine d’année. Il a été entièrement repensé pour une famille avec un enfant en bas – âge.

 

Trois espaces distincts, l’entrée, le salon et la salle à manger ont étés assemblés pour créer un grand séjour avec une cuisine ouverte. Un poteau structurel permet de marquer l’entrée.

La cuisine à été déplacée dans le séjour afin de créer à sa place une suite parentale avec salle d’eau au bout de l’appartement.

 

L’ensemble du projet à été pensé pour maximiser les volumes. Des meubles sur mesure tels que la banquette / meuble TV dans le séjour ou les meubles de la chambre parentale ont été créés pour tirer au mieux partie des pièces.

 

Les couleurs des pièces de vie ont été sélectionnées dans un camaïeu de blanc cassé, allant du blanc au beige crème. Des couleurs spécifiques ont été choisies pour les chambres, couleurs distinctes se mariant bien entre elles.