4 pièces / 75017

Localité : Paris 17
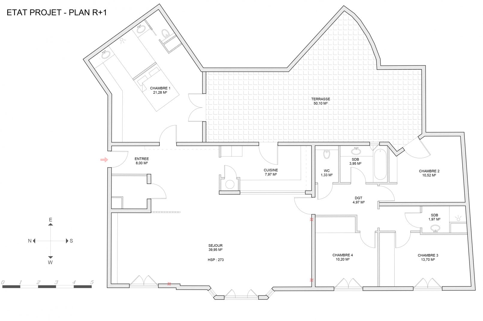
Surface de plancher : 119 m2
Champ d’action : Conception des espaces intérieur et extérieur

 

Le projet se situe dans un immeuble contemporain, à proximité de l’Avenue des Ternes.

 

Avant travaux, l’appartement comportait une entrée largement ouverte sur le séjour, un espace salle à manger mal défini et une cuisine ouverte peu spacieuse. En dépit du volume important, la mauvaise imbrication des espaces contribuait à une circulation difficile. La terrasse en béton non aménagée incitait peu à profiter de l’extérieur.

 

L’entrée, la salle à manger et la cuisine ont été redéfinies comme des espaces distincts. Un claustra été créé pour séparer l’entrée de la salle à manger et un faux plafond et des étagères ont été ajoutés dans la salle à manger pour différencier le coin repas du séjour. Un espace buanderie a été créé dans l’entrée. Une verrière a été implantée entre le séjour et la cuisine, maintenant la double exposition de la pièce et sa belle luminosité, tout en différenciant les lieux et les fonctions. Le séjour est redevenu un espace central. Une banquette a été dessinée sous le bow-window qui met en valeur le côté convivial du séjour.

 

Une chambre parentale avec son dressing et sa salle de bains, un double accès derrière la tête de lit, ouvre sur la terrasse. Terrasse est également accessible depuis la cuisine et une chambre d’enfant. Les grands bacs en béton, redessinés et habillés de bois Cumaru, se poursuivent par un banc qui délimite un espace conçu pour boire un verre ou lire, tandis que le coin salle à manger d’extérieur se situe à proximité de la cuisine.

 

La chambre d’enfant dispose d’une salle de bains et de toilettes indépendants. Une pièce sur rue a été transformée en bureau.

 

Chaque pièce a été pensée dans une couleur spécifique, avec une dominante dans les bleus-verts et des matériaux contemporains.