Claude Decaen / 75012
Localité : Paris 12
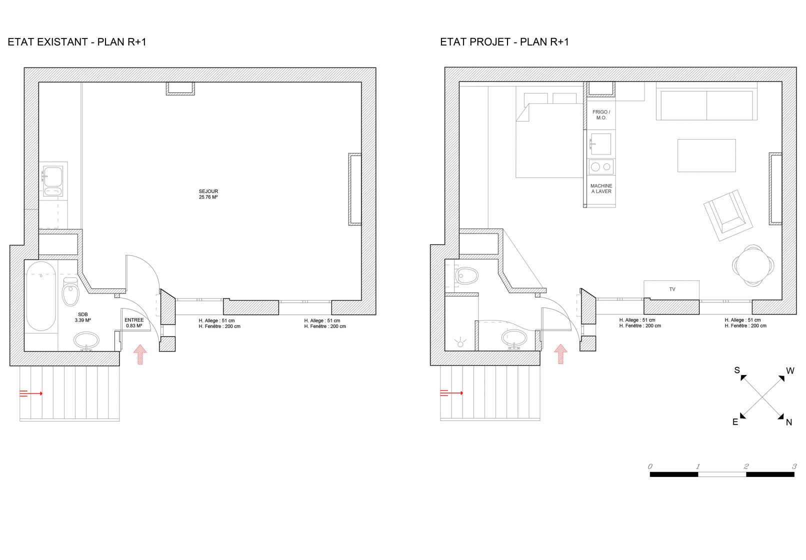
Surface de plancher : 29 m2
Champ d’action : Rénovation complète
Destiné à un homme seul, mais conçu pour deux personnes.
L’organisation de l’appartement a été repensée afin que la grande pièce centrale dispose d’un espace pour chaque fonction: un coin salon, un coin salle à manger, une cuisine et un vrai coin nuit, le tout dans un appartement de 29 m2.
Pour la salle de bain, le plan a été modifié pour optimiser l’agencement au maximum.
L’appartement étant trop petit pour avoir un réel deux pièces avec une chambre séparée, l’idée fut de créer une cloison entre le coin cuisine et celui de la chambre avec une ouverture pour le passage ( sans porte) et de disposer une grande verrière sur celle ci afin d’avoir un maximum de lumière naturelle de chaque côté.
Un jeu sur les couleurs autour du vert a été pensé dans des tons ni trop foncés, ni trop fades pour trancher avec le blanc qui domine dans l’appartement.