Rue Jussienne / 75002
Localité : Paris 02
Surface de plancher : 67 m2
Champ d’action : Rénovation complète pour une location
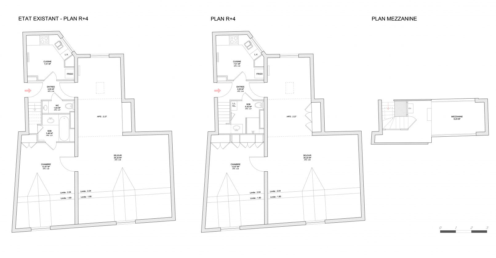
Destiné à la location, cet appartement a été complètement rénové. La circulation de l’appartement a été réorganisée, nous avons notamment réuni les WC et la salle de bain avec une ouverture dans l’entrée pour créer un grand dressing dans la chambre.
Nous avons ajouté un volume indépendant pour accueillir une chambre avec un point d’eau sur la mezzanine. Cette chambre très ouverte, profite de la lumière naturelle à l’aide des fenêtres intérieures et des velux.
Situé sous les toits, au 4ème étage d’un très bel immeuble du 2ème arrondissement, les poutres anciennes sont mises en valeur. Le parti pris pour les sols et les murs fut de choisir des tonalités neutres et consensuelles pour la location de l’appartement.